Installazione finestre e persiane a Castello Brianza (LC)

Cliente:   Martina Carla C. - Castello Brianza (LC)

Data di consegna:   Ottobre 2025

  • Persiane Tipo di intervento:
    • Posa con telaio
  • Serramenti Tipo di intervento:
    • Posa con smuratura del vecchio telaio
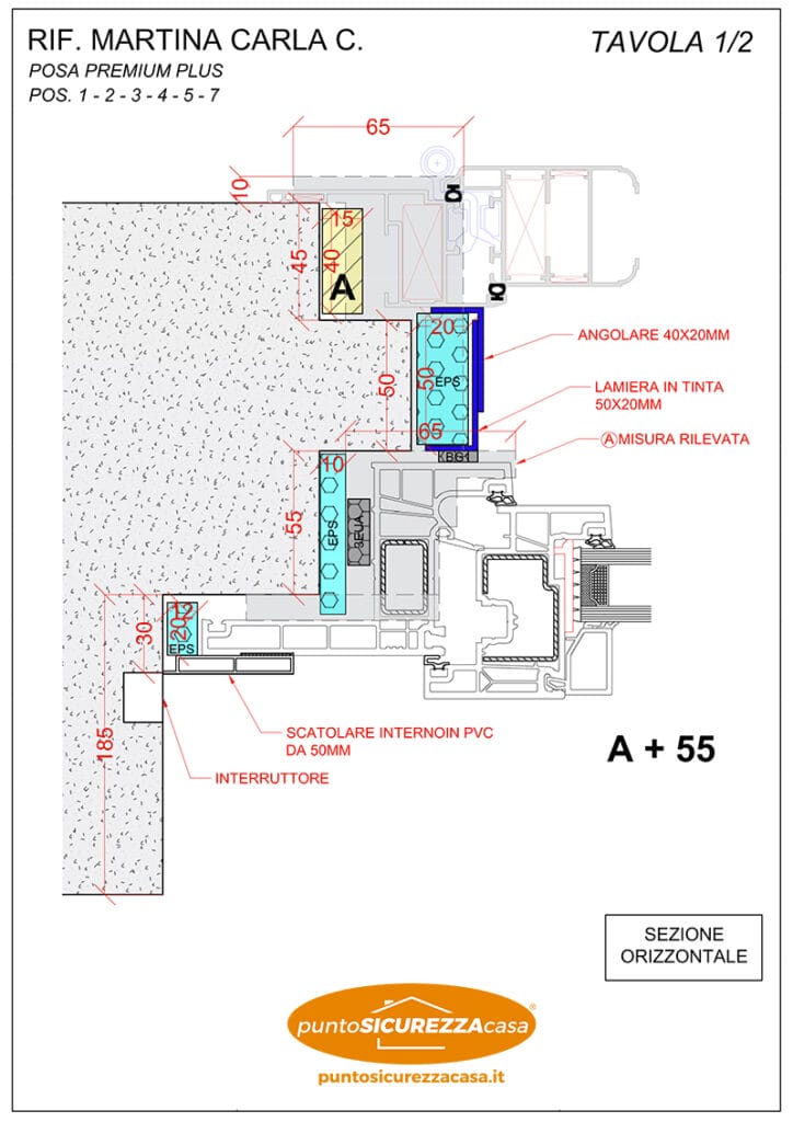
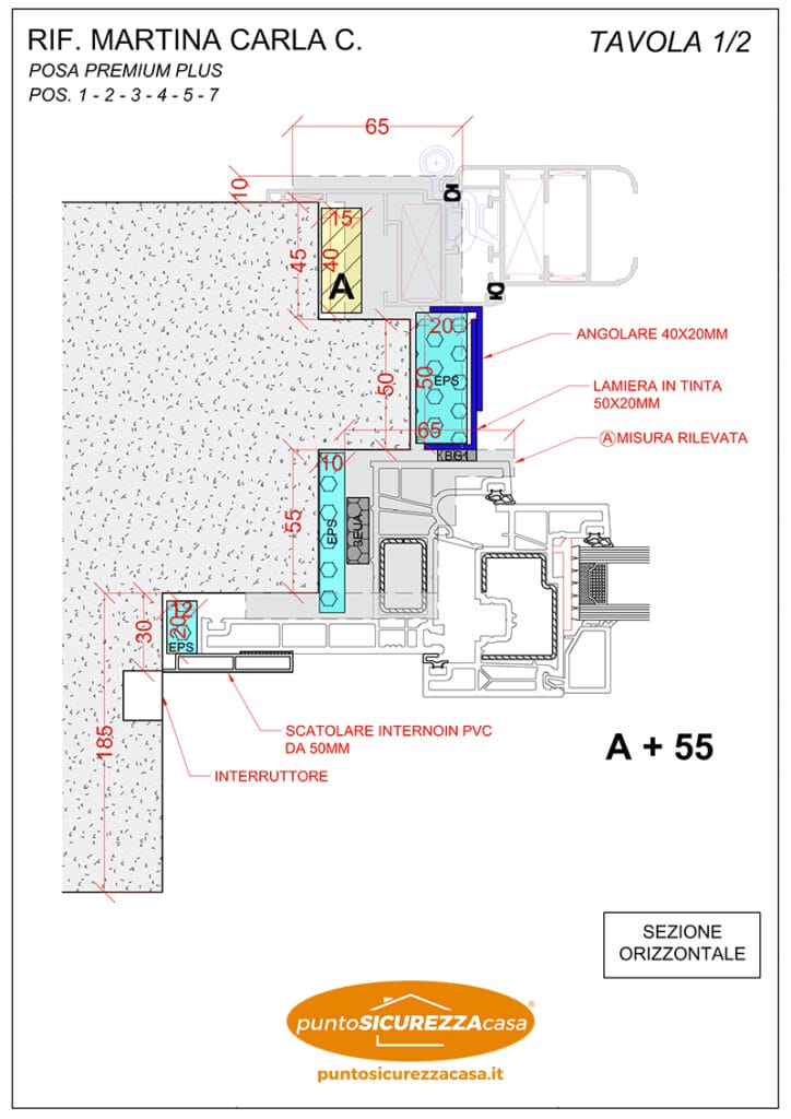
    • PosaClima Premium Plus (garanzia 10 anni)

Il cliente ha scelto:  

  • 6 serramenti in pvc bicolore, colore interno bianco e colore esterno verde abete
  • 1 serramento in pvc bicolore ribalta e scorri, colore interno bianco e colore esterno verde abete
  • Coibentazione cassonetti esistenti epr tutte le posizioni dei serramenti
  • 6 persiane in alluminio orientabili colore verde

Tempi effettivi di posa:   32h

Come operiamo:

  • Copertura specifica per ogni ambiente
  • Pulizia accurata area di lavoro
  • Collaudo funzionalità per installazione

Installatori certificati

$installatore->user_nicename
$installatore->user_nicename
0 ANNI DI ATTIVITA'
0 PUNTI VENDITA
0 MQ DI SHOWROOM
0 CLIENTI SODDISFATTI
0 INFISSI INSTALLATI
0 PORTE BLINDATE INSTALLATE